Residential construction with brick modules – the economical answer to the housing shortage
The housing shortage is growing—at the same time, demands for sustainability and energy efficiency are rising. With Leipfinger-Bader’s solid brick modules, modern living spaces can be created in no time. The industrial modular construction method guarantees the highest precision, predictable costs, and extremely short construction times.
Whether it’s an apartment, a townhouse, an apartment building, or a commercial building—this sustainable brick system combines solid construction quality, energy efficiency, and healthy living. It’s also ideal for daycare centers, schools, and healthcare facilities.
The Leipfinger-Bader brick module system represents modern, modular construction using natural materials—an intelligent solution for the sustainable housing of tomorrow. It creates more space in less time—without compromising on quality, aesthetics, or efficiency. Through the clever combination and flexible arrangement of the modules, attractive multi-story construction can be realized economically, quickly, and with a future-proof design.
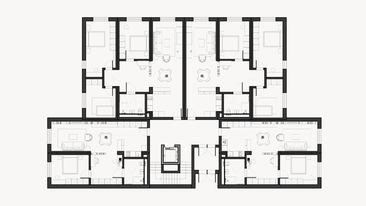
Sample floor plan designs for ZIEGELMODULE multi-story construction:



Space to live – flexible living solutions for all life situations
Today's modern living concepts must be versatile, efficient, and affordable—while also meeting high standards of comfort, sustainability, and design. Modular construction enables living solutions for every stage of life: from compact one-room micro-apartments and functional two-room floor plans to spacious three- or four-room apartments and modern townhouses.
It offers ideal conditions for families, singles, students, and employees alike, combining intelligent space planning, high-quality fittings, and short construction times. The combination of solid construction quality, energy efficiency, and flexible planning creates sustainable living space that meets modern lifestyles and retains its value in the long term.
Build sustainably. Secure the future. With attractive financing terms and grant opportunities.
Those who build today are shaping the future—and can take advantage of a wide range of government funding opportunities. Brick modules combine solid construction quality with modern energy efficiency—a combination that generally qualifies for funding under many programs and can provide access to low-interest loans and grants. This creates housing that adds value: environmentally friendly, cost-effective, and forward-thinking. Take advantage of this opportunity to realize your project sustainably—energy-efficient, eligible for funding, and retaining its value.
*Note: The actual funding terms, interest rates, and grant amounts are subject to the current guidelines of the funding agencies (e.g., KfW, L-Bank, BayernLabo) and are subject to change at any time.
Smart living in small spaces
Perfect for students, employees, commuters, or short-term living: the one-room micro apartment makes efficient use of every square meter and combines sleeping, working, and living areas in a harmonious room concept. Despite its compact size, thoughtful planning and high-quality furnishings ensure genuine living comfort.
Well planned for a greater sense of space
This apartment combines compact living with pleasant spaciousness. The open-plan living, dining, and kitchen area creates a welcoming atmosphere, while the separate bedroom ensures privacy. Intelligent room layout and high-quality furnishings create a comfortable living space that perfectly combines functionality and style.
More space for shared living and cohabitation
The three-room apartment offers generous living comfort in an intelligently designed space. Two separate bedrooms, an open-plan living and dining area, and well-thought-out storage solutions create space for families, couples, or shared living. Bright rooms, clear structures, and an efficient floor plan ensure a pleasant living experience—modern, functional, and sustainably implemented.
More space for shared living and cohabitation
The 4-room apartment made of solid brick modules offers modern living comfort with a flexible room layout. Three bedrooms, a bathroom, a toilet, and an open-plan living and dining area create generous space for families or communal living. Sustainable, energy-efficient, and brightly designed—clear structures and high-quality materials ensure a pleasant indoor climate and contemporary living comfort.
Space for family, community, and quality of life
The modular semi-detached/terraced house combines spacious living with efficient planning and sustainable construction. Spanning two floors, it offers space for families or communal living – with open-plan living and dining areas on the ground floor and bright, clearly structured retreats on the upper floor. The modular design results in high-quality architecture with a short construction time, efficient energy use, and the flexibility to build entire terraced housing developments economically.
Individually built – modularly designed
Leipfinger-Bader's modular construction system can be used to build not only residential buildings, but also commercial buildings, daycare centers, schools, medical practices, clinics, retirement homes, and office buildings in an efficient and sustainable manner. The modular construction method combines the advantages of industrial prefabrication with the durability of solid bricks and enables fast, economical, and energy-efficient construction.
Whether it's an administrative building, care facility, kindergarten, student residence, or health center—every property can be individually planned and architecturally adapted. Thanks to the high degree of prefabrication, short construction times, and predictable costs, ZIEGELMODULE is ZIEGELMODULE ideal solution for municipal, commercial, and social construction projects. The result is sustainable buildings with high sound insulation, fire protection, and energy efficiency that are functional, modern, and future-proof.
We would be happy to advise you on your project.
The first step toward a successful project is a reliable assessment by experienced specialists. The team of experts at Leipfinger-Bader is ready to analyze the potential of modular brick construction for your specific project. All we need to get started are some basic details, a rough sketch, or even just a specific question.
Send us a non-binding inquiry to lay a solid foundation for your future decisions.
Facade design with TONALITY - architecture meets aesthetics
Ceramic facade systems from TONALITY give ZIEGELMODULE unmistakable architectural quality. They combine the clear structure of solid modules with the elegance of high-quality ceramics. The result is a balanced combination of precision, durability, and creative freedom.
TONALITY products impress with their natural material depth, brilliant colors, and outstanding resistance to environmental influences. With a variety of surfaces, formats, and color schemes, they open up a wide range of possibilities for implementing individual architectural concepts—from a minimalist, modern appearance to a warm façade full of character.
The result is buildings with a long service life, striking design language, and the highest aesthetic quality—a successful symbiosis of Leipfinger-Bader brick modules and TONALITY ceramics "Made in Germany."
online catalog
Experience the brick module principle
The catalog provides a concise overview of Leipfinger-Bader's modular construction system – from concept and production to completed projects.
Among other things, it contains detailed information about:
- Technical data for ZIEGELMODULE
- Information about hybrid construction
- Floor plan examples
- furnishing options
- reference objects
- Planning notes
- and much more
Discover how sustainable living space is created from industrially prefabricated brick modules—in the shortest possible time, energy-efficiently, and eligible for EH40-QNG subsidies.
Intelligent hybrid construction: solid construction in a modular system
This construction method combines the best of both worlds: the solid value retention of traditional brick construction with the millimeter precision of industrial factory production. Value creation is shifted from the unpredictable construction site to the controlled environment of the production plant.
This state-of-the-art process produces 95% prefabricated ZIEGELMODULE, including complete interior finishing from building services to the final surfaces. The result is consistently tested quality that is virtually unattainable on conventional construction sites.
An approach that revolutionizes the construction process. Find out how this method halves construction time while taking the quality of your project to a new level.
Construction boom example
14 turnkey apartments in record time
Fourteen individual one- and two-room apartments were built on a turnkey basis for a two-story residential building—in a time frame that would be unthinkable in conventional solid construction.
A project that perfectly demonstrates the enormous efficiency and flexibility of modular brick construction. The perfect synthesis of speed and flexibility, ensuring quick rental and maximum return on investment for investors.